項目概況
業(yè)主是兩兄弟,長期在外地,由于老家的建房政策愈來愈嚴,故想盡早把房子起了,以免夜長夢多。
本項目總建筑面積649.5㎡,其中一層建筑面積164.7㎡,二層172.0㎡,三層面積172.0㎡,四層面積140.8㎡。

▲總平面圖
戶型設計

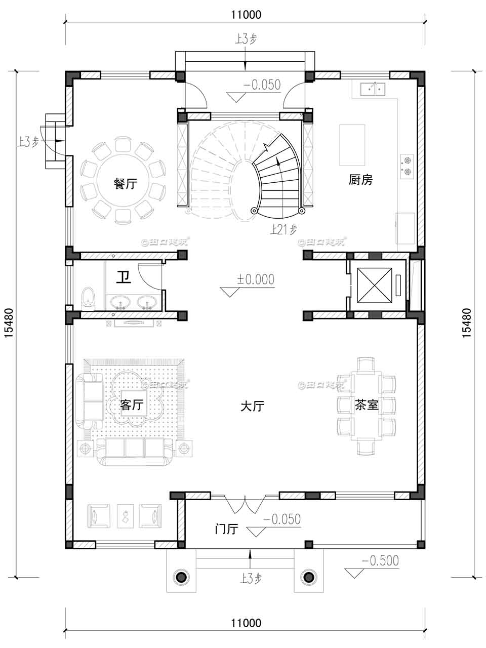
▲一層平面圖
門廳、大廳、客廳、茶室、廚房、餐廳、公衛(wèi)、電梯;

▲二層平面圖
一套房、兩書房帶衛(wèi)、兩陽臺、大廳上空;

▲三層平面圖
兩套房帶衛(wèi)衣帽間、兩書房帶衛(wèi)、露臺、陽臺;

▲四層平面圖
兩套房帶衛(wèi)衣帽間、兩雙床房帶衛(wèi)、三露臺;
造型設計

▲東南角鳥瞰圖

▲正立面透視圖

▲東南角透視圖

▲東立面透視圖

▲西立面透視圖

▲北立面透視圖

▲院內透視圖
建成照片

▲主體落成
END